MARTIN MILLER’S ART HOUSE

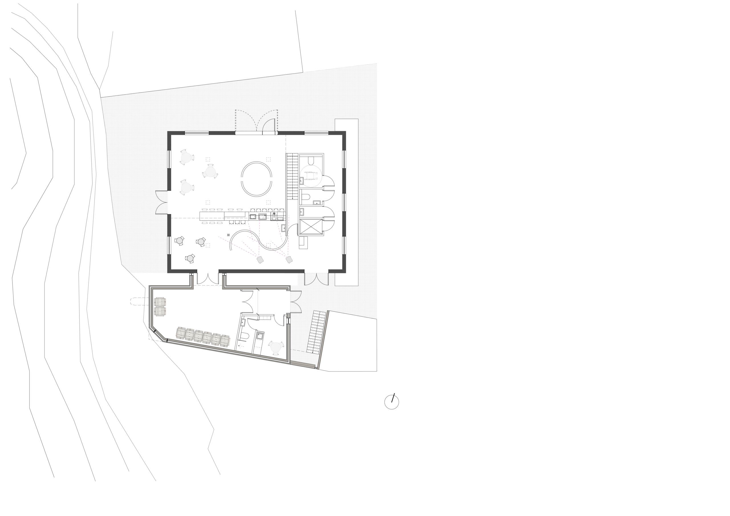
Hugmyndavinna fyrir ginframleiðandan Martin Miller’s Gin um gestastofu í Borgarnesi. Martin Miller’s Gin hefur verið framleitt í bænum í yfir tuttugu ár og hugmyndin gekk útá að taka gamalt hús í Brákarey og þróa þar gesta- og móttökustofu fyrir sælkera. En í anda Martin Miller’s væri komið á fót listarými fyrir listafólk úr grasrótinni sem myndu nýta húsnæðið sem listsel (residensíu) og fyrir listviðburði.

Í þeim anda er húsið og lítil viðbygging við það hannað með það í huga að náttúran bæti við list hússins. Affallsvatn af þaki myndi t.d. ísskúlptúr í frosti.

Gerð:
Atvinnuhúsnæði
Staða:
Tillaga
Ár:
2020
Verknúmer:
2001A
Staðsetning:
Borgarnes
Date:
Category: